per week




UNDER OFFER
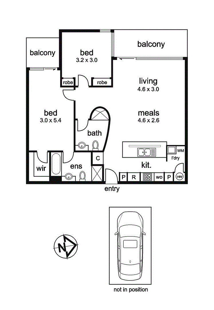
Positioned on Level 5 of the acclaimed Astorial complex by Fender Katsalidis, this impressive approx. 110sqm apartment (95sqm internal) delivers space, light and lifestyle in the heart of Carlton. The generous open-plan living and dining area is filled with natural light via full-height windows and flows to a large covered balcony with sweeping city views.
The sleek stone-topped gas kitchen features stainless steel appliances, dishwasher and breakfast bar. Accommodation includes a spacious main bedroom with walk-in robe, private balcony and ensuite, a second bedroom with built-in robes, plus a deluxe central bathroom.
Additional features include ducted heating and cooling, double glazing, internal laundry, secure basement car space, intercom and lift access. Steps to trams and within walking distance of Melbourne University, RMIT, Lygon Street dining, Victoria Market, Carlton Gardens and the CBD.
Open for Inspections -
Saturday 14th February - 10:00–10:30 am
Listed on
January 27, 2026
Sold on
Leased on
Bond: