$750
per week




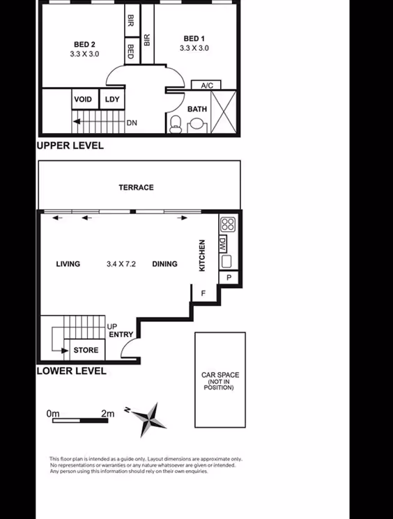
This spacious, light-filled property presents the epitome of Melbourne lane-way culture, nestled in amongst the buzz and chatter of famous Hardware Lane. Moments from the delights of Melbourne Central, Queen Victoria Market, Flagstaff Gardens and loads of public transport, you will be spoilt for choice in this prime positioning. This boutique, Neo Metro warehouse conversion is set on the top floor, and split over two spacious levels, offering sublime natural light, high ceilings, floor boards and large entertaining balcony accessible from impressive floor-to-ceiling windows.
Featuring a large open plan living and dining area, well-equipped kitchen with stainless steel appliances and ample storage, enjoy soaking up the morning sun from your wide, east-facing balcony over looking Melbourne's skyline. Upstairs offers a master bedroom with built in robes, second bedroom with its cleverly designed shelving, converting between the ideal home office with library and spare room/second bedroom. Serviced by a central bathroom with stone floors and lots of storage, and a separate concealed laundry, this property is as tidy as they come.
Additional features include air-conditioning/heating, one off-street car space, under-stair storage, secure entrance and intercom. An ideal retreat for the professional couple, single, or suburban down-sizer, discover and enjoy what Melbourne, the worlds most liveable city, has to offer, and make this value-packed property home.
Listed on
October 26, 2024
Sold on
Leased on
November 14, 2024
Bond:
$3,259

$2,650,000 - $2,850,000
per week




Townhouse